Local en venta en calle San Antonio Kalea, 2
Descripción
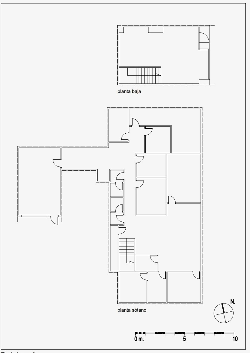
Tremendo local con infinitas posibilidades en Calle San Antonio Nº2, distribuido en dos plantas y con una superficie total de 303 m² construidos.
Planta baja (58 m²):
Acceso principal desde la calle San Antonio, cuenta con un espacio diáfano y una gran cristalera que permite una excelente visibilidad y luminosidad natural. Este escaparate es perfecto para captar la atención del público, destacando cualquier negocio que decidas establecer. Su diseño abierto ofrece múltiples opciones de personalización según las necesidades del proyecto.
Planta sótano (245 m²):
Acceso independiente a través del garaje. Está distribuido en 11 estancias, perfectas para organizar distintas áreas funcionales, y dispone de dos baños completos.
Ubicación privilegiada
El local se encuentra en pleno corazón de la ciudad, a pocos metros de la Calle General Álava, una de las zonas más transitadas y comerciales de Vitoria-Gasteiz. Además, su cercanía a una parada de tranvía (a solo un minuto a pie) garantiza una conexión inmejorable tanto para clientes como para empleados, lo que lo convierte en una opción estratégica para cualquier tipo de negocio.
Gran versatilidad de uso
Gracias a su distribución, ubicación céntrica y la gran visibilidad que ofrece su cristalera, este local es perfecto para múltiples actividades:
Empresa de logística o paquetería.
Gimnasio o centro de entrenamiento personal.
Academia educativa o cultural.
Centro de bienestar, yoga o pilates.
Gestoría, despacho profesional o coworking.
Centro de estética o clínica.
El espacio ofrece la oportunidad de crear un negocio que destaque por su ubicación estratégica, sus instalaciones adaptables a diferentes sectores y la gran exposición que garantiza su cristalera en la planta baja. ¡No dejes pasar esta oportunidad única para invertir en el centro de Vitoria!
Dirección
-
Dirección calle san antonio 2
-
País Spain
Descripción general
- ID de propiedad J71
- Precio €210,000
- Alojamientos 14
- Baños 2
- Año de construcción 1976
- Tamaño 303 m2
- Garages 1








